- Living area
- About 153 m²
- Plot area
- About 502 m²
- Year built
- Built in 1975
- Number of rooms
- 5 rooms (4 bedrooms)
vraagprijs: € 490.000,- euro k.k.
aanvaarding: 1-5-2025
de bezichtigingen zullen plaatsvinden op 26 en 27 maart a.s.
op zoek naar een vrijstaande geschakeld woning uit 1975 met veel woonoppervlakte ( ca 153 m2) en lichtinval, op een ruim perceel van 502 m2 in een rustige woonwijk met veel privacy nabij alle voorzieningen in voerendaal ?
ligging:
deze woning is centraal gelegen in kunrade nabij de basisschool, zwembad de joffer, tennis- en voetbalverenigingen en het centrum van voerendaal welke beschikt over supermarkten (plusmarkt en aldi) en alle benodigde dag winkels. verder wordt voerendaal gekenmerkt door een landelijke doch zeer centrale ligging met goede aansluitingen op de autosnelwegen richting maastricht, eindhoven en aken.
indeling:
begane grond:
via hal/entree met meterkast, betegeld toilet met fonteintje is er toegang tot de lichte woonkamer. in de woonkamer is een wenteltrap welke toegang biedt tot de 1e verdieping.
vanuit de lichte woonkamer kom je in de gesloten keuken uit welke voorzien is van alle noodzakelijk inbouwapparatuur en geeft je toegang tot de ruime achtertuin en de geschakelde garage met elektrische sectionaal poort. er bestaat de mogelijkheid om de begane grond uit te bouwen en te vergroten d.m.v. een aanbouw.
eerste verdieping:
ruime lichte overloop met toegang tot de 3 slaapkamers en ruime betegelde badkamer voorzien van ligbad/ douche combinatie, wastafel, toilet en een inloopdouche.
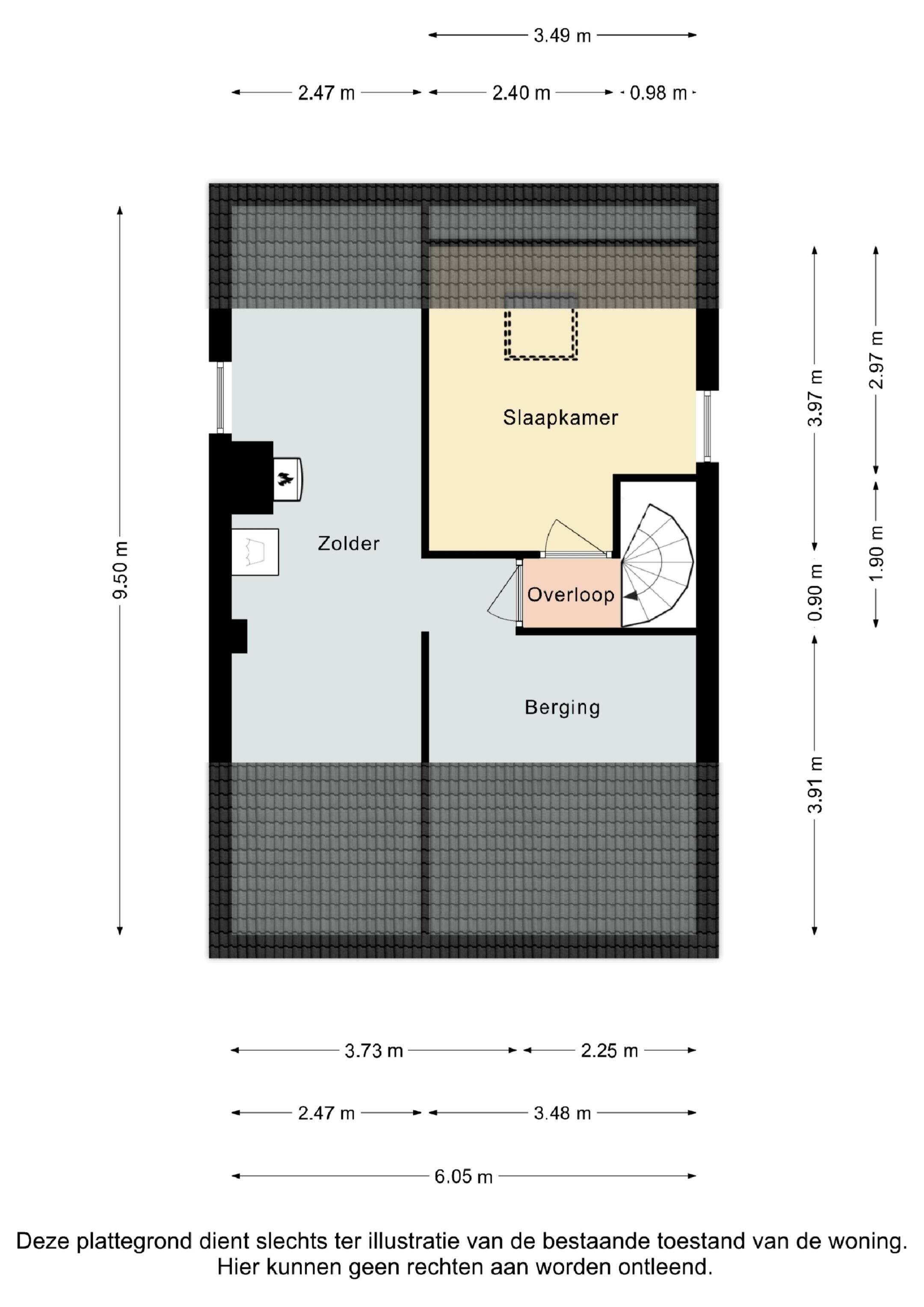
tweede verdieping (zolder):
deze verdieping is bereikbaar via de vaste trap. middels een kleine overloop kom je in de 4e slaapkamer. op de zolder is tevens de cv eigendom installatie van het merk remeha uit 2015 gesitueerd met de witgoed aansluitingen. daarnaast biedt de zolder veel opbergmogelijkheden en de mogelijkheid tot het plaatsen van een dakkapel aan de achterzijde.
bijzonderheden:
- vrijstaand geschakeld woonhuis op ruim perceel met garage en tuin in een geliefde woonwijk centraal in kunrade gelegen
- bouwjaar 1975
- hardhouten kozijnen met dubbele beglazing
- ruime voor en achter tuin met terras en achterom ingang met garage en oprit
- woonoppervlakte 153 m2/ perceeloppervlakte 502 m2
- inhoud 616 m3
- energielabel c
- in totaal 15 eigendom zonnepanelen uit 2021 (volta solar)/ totaal 4875 wp
- de c.v-ketel eigendom van het merk (remeha) uit 2015
- in de nabijheid van scholen, winkels, voorzieningen
voor de exacte maten in deze presentatie zie bijgevoegde plattegronden.
voor het maken van een afspraak kunt u contact opnemen met verkopend makelaar: tom van houtem (06-20269830).
disclaimer;
* alle maten zijn circa maten;
* aan deze presentatie kunnen geen rechten worden ontleend;
* de waarborgsom/bankgarantie is 10% van de koopsom. de koper dient deze binnen 2 weken nadat het financieringsvoorbehoud is verlopen bij de desbetreffende notaris te deponeren;
* koper is te allen tijde gerechtigd voor eigen rekening een bouwkundige keuring te (laten) verrichten dan wel andere adviseurs te raadplegen teneinde een goed inzicht te verkrijgen in de staat van onderhoud;
* ter bescherming van de belangen van zowel koper als verkoper, wordt uitdrukkelijk gesteld dat een koopovereenkomst met betrekking tot deze onroerende zaak eerst dan tot stand komt nadat koper en verkoper de koopovereenkomst hebben getekend (“schriftelijkheidsvereiste”)
Transfer
- Asking price
- €490,000 k.k.
- Status
- Sold
- Acceptance
- Available from 30-04-2025
Construction
- Object type
- Single-family house, detached house
- Type of construction
- Existing construction
- Year built
- 1975
Area and content
- Living area
- 153 m²
- Plot area
- 502 m²
- Content
- 616 m³
- Other indoor space
- 21 m²
- Building built. outdoor space
- 3 m²
Classification
- Number of rooms
- 5 rooms (4 bedrooms)
- Number of bathrooms
- 1 bathrooms (1 toilet)
- Bathroom facilities
- Bathtub, toilet, shower, walk in shower
- Number of residential floors
- 3 floors
Energy
- Energy label
- C
- Energy label registration
- 07-11-2019
Outdoor space
- Location
- On quiet road, in residential area, close to Highway, close to public transportation, close to school
- Garden
- Backyard
- Afmetingen achtertuin
- 161 m² (12.8 meters deep and 12.54 meters wide)
- garden location
- Located on the southwest and accessible from the back
Garage
- Type of garage
- Attached brick garage
- Capacity
- 1 car
- Facilities
- Electricity, electric door
Energy consumption in Voerendaal
Energy label this property
Energielabel C
Publishing energy label: 07-11-2019
Power consumption per year
(Average detached house in Voerendaal)
Gas consumption per year
(Average detached house in Voerendaal)
* Figures are from CBS and are intended as an indication and may vary for this property
Indication of mortgage costs
Own deposit:
Savings / surplus value
Interest:
Lowest 10-year interest rate
Lowest 10-year interest rate
2,8% - Centraal Beheer Groen L... - NHG
3,1% - Centraal Beheer Groen L... - 80%
Lowest 20-year interest rate
3,19% - Centraal Beheer Groen... - NHG
3,31% - Centraal Beheer Groen... - 80%
Lowest 30-year interest rate
3,34% - Centraal Beheer Groen... - NHG
3,47% - Centraal Beheer Groen... - 80%
Mortgage:
Gross monthly expenses: € 0 p/m
Net monthly expenses: € 0 p/m
How do we calculate this?
The interest rate is based on the lowest 10-annual fixed rate for one mortgage part. The interest rate listed (3.1% zonder NHG) was checked on 15-04-2025. This calculation is based on an annuity mortgage that is fully repaid, with monthly payments remaining the same throughout the term. Actual interest and net monthly payments may vary depending on your personal situation and the mortgage lender. Please consult a financial advisor for an accurate calculation and advice. No rights can be derived from this calculation; it serves only as an indication.
Documentation
Cadastral map
Living Environment
Visit our website
Viewing
Bid on this property
Valuation
Zoekopdracht
Download all
Viewing solar borders
On the map
Residents in Voerendaal
Cijfers voor postcodegebied 6367
- Total population
- 8300 inhabitants
- Men
- 49%
- Women
- 51%
Residents in Voerendaal
Cijfers voor postcodegebied 6367
- up to 15 years
- 14%
- 15 to 25 years
- 10%
- 25 to 35 years
- 19%
- 45 to 65 years
- 31%
- 65 and older
- 27%
Households in Voerendaal
Cijfers voor postcodegebied 6367
- Single without children
- 30%
- Multi-person without children
- 37%
- Households without children
- 67%
Households in Voerendaal
Cijfers voor postcodegebied 6367
- Households with one child
- 7%
- Households with multiple children
- 26%
- Households with children
- 33%
Homes in Voerendaal
Cijfers voor postcodegebied 6367
- Houses before 1945
- 14%
- Houses between 1945 and 1965
- 24%
- Houses between 1965 and 1975
- 21%
- Houses between 1975 and 1985
- 13%
- Houses between 1985 and 1995
- 11%
Homes in Voerendaal
Cijfers voor postcodegebied 6367
- Homes between 1995 and 2005
- 9%
- Homes between 2005 and 2015
- 5%
- Homes after 2015
- 3%
- Rental properties
- 30%
- Homes for sale
- 70%
Other in Voerendaal
Cijfers voor postcodegebied 6367
- Average WOZ value
- € 240.000,-
- Persons under 65 with benefits
- 7%
Other in Voerendaal
Cijfers voor postcodegebied 6367
- Addresses per km²
- 672
- Urbanity (scale of 1 to 5)
- 40%
Dichtbij Vastgoed
If you have any questions or would like to schedule a viewing, please use the form to the right. You will be contacted shortly thereafter.
Desteijnstraat 33
6367 DA, Voerendaal
045 - 820 0202 tom@dichtbijvastgoed.nl www.dichtbijvastgoed.nlVastgoed dichtbij
Dichtbij Vastgoed kenmerkt zich door haar persoonlijke en betrokken werkwijze. We kijken verder dan alleen de verkoop van je woning. In een oriënterend en vrijblijvend gesprek bepalen we samen wat je van ons kunt verwachten en wat de strategie is die bij jou en de verkoop van jouw woning past. Wij helpen je van begin tot eind aan een persoonlijk verhuistraject.
Wij vinden het achterhalen van sfeer en beleving waarheen je op zoek bent belangrijk. Gezamenlijk gaan wij graag met je actief op zoek naar de juiste match in de regio!
Wij werken in de volgende regio's, Makelaar Bocholtz, Makelaar Simpelveld, Makelaar Kerkrade, Makelaar Landgraaf, Makelaar Parkstad en Huis verkopen Heerlen, Makelaar Vaals, Makelaar Heuvelland.
Latest reviews
-
Silhof 21
Tom ingeschakeld als makelaar voor de verkoop van ons appartement.Fijne, open en snelle communicatie.Stap voor stap op de hoogte gehouden be...
-
Edise Hruste
Ik ben ontzettend tevreden over de service van deze makelaar. Van het eerste contact tot de uiteindelijke verkoop, alles verliep soepel en p...
-
Ro05nenstraat 1
Tom is gedreven en kundig, hij gaat tot het uiterste om succes te behalen.Mocht het ooit weer zover komen dan zeker met Tom, hij is z'n geld...